積水ハウス施工 × 平屋新築棟 × 二世帯対応の希少資産
3,980万円
白岩町の落ち着いた邸宅街に佇む本物件は、

1992年、積水ハウスが手がけ、その意匠性が評価され受賞歴を持つ邸宅に、
2015年、新たに平屋棟を新築・一体化させた、極めて希少性の高い二棟構成の住まいです。
年月を重ねながらも、
丁寧に住み継がれてきたことが随所に感じられる空間。

上質でありながら、どこか温もりを帯びた佇まいは、
**量産住宅では決して得られない「住まいの品格」**を静かに語ります。
3,980万円でのご紹介が可能となっています。
土地だけでも3,000万円は
■ 住まう方の美意識を映す、静謐で洗練された空間
メインとなる積水ハウス施工の邸宅は、
約132?超のゆとりある空間構成。

建築当時から高く評価されてきたデザイン性は今なお色褪せず、

適切なリフォームを重ねることで、現在も非常に良好なコンディションを保っています。
一体化された平屋棟は、
光と風を巧みに取り込む開放的な設計。

親世帯の居住空間としてはもちろん、
アトリエ、書斎、サロン、仕事場など、
用途を限定しない“余白のある一室”として、高い価値を持ちます。
まるで四季折々に表情を変える庭木のように、
住む方のライフステージに応じて柔軟に姿を変える住まいです。
■ 二世帯住宅として、あるいは「賃貸併用」という知的選択
本邸は、
一棟をご自宅として使用しながら、
もう一棟を月額8万円前後で賃貸運用することも想定可能。
・将来への備え
・住宅ローンの軽減
・安定した資産形成
「住まい」と「資産価値」を両立する、
極めて合理的で希少な選択肢です。

また、
**分割販売(例:2,200万円/2,300万円)**のご相談も可能で、
「一棟のみ」というご要望にも柔軟に対応いたします。
※一括購入をご希望の方を優先させていただきます。
■ 素地の良さが際立つ、白岩町の成熟した住環境
行政施設、金融機関、医療機関、日常の買い物施設が徒歩圏内。
生活利便性と静けさが高い次元で両立する、成熟した住宅地です。
小・中学校へも無理のない距離にあり、
家族構成の変化にも長く対応できる立地。
バス停まで徒歩6分、
JR西諫早駅へは徒歩18分と、交通利便性も良好。
日々の移動にストレスを感じさせません。
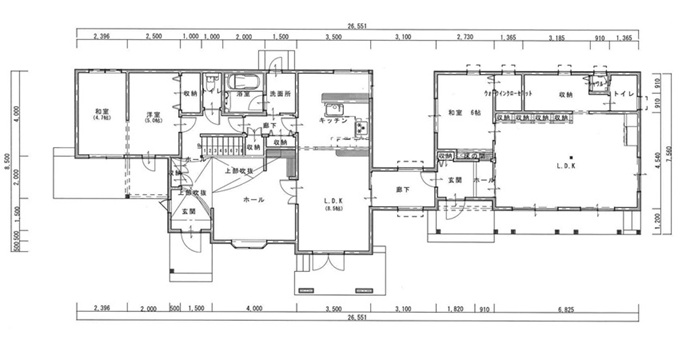
■ 物件概要
所在地:諫早市白岩町32-3・32-4
価格:3,980万円
間取り:8LDK
土地面積:445.19?(134.66坪)
建物面積:191.98?(58.07坪)
建物詳細
1992年1月:積水ハウス施工(受賞歴あり)
2015年4月:平屋棟 新築(59.62?)
構造:軽量鉄骨造+木造(二棟構成)
リフォーム:複数回実施
駐車場:4台(屋根付き)
法令等
市街化区域
第一種低層住居専用地域
南側6m道路/接面32m
現況:空家
引渡:即時
近隣では、
土地61坪・建物35坪の新築分譲住宅が税込5,836万円で販売されており、
本邸が持つ「広さ・質・資産性」を考えれば、
その価格優位性は際立っています。
■ ご案内
「この住まいの価値は、
写真や言葉では語り尽くせません。」
現地に立ち、空気を感じていただければ、
この家が“選ばれてきた理由”を、きっとご理解いただけます。
どうぞお気軽にご見学ください。
シモハマ不動産
諫早市宇都町19-63
TEL:0957-24-2885
E-mail:isahaya@shimohamafudosan.com
担当:下浜 誠一郎
携帯:090-9570-9735
長崎県知事(11)第1865号
(公社)長崎県宅地建物取引業協会会員
九州公正取引協議会会員
情報登録日:令和8年2月10日
更新予定日:令和8年3月6日
3,980万円
白岩町の落ち着いた邸宅街に佇む本物件は、

1992年、積水ハウスが手がけ、その意匠性が評価され受賞歴を持つ邸宅に、
2015年、新たに平屋棟を新築・一体化させた、極めて希少性の高い二棟構成の住まいです。
年月を重ねながらも、
丁寧に住み継がれてきたことが随所に感じられる空間。

上質でありながら、どこか温もりを帯びた佇まいは、
**量産住宅では決して得られない「住まいの品格」**を静かに語ります。
3,980万円でのご紹介が可能となっています。
土地だけでも3,000万円は
■ 住まう方の美意識を映す、静謐で洗練された空間
メインとなる積水ハウス施工の邸宅は、
約132?超のゆとりある空間構成。

建築当時から高く評価されてきたデザイン性は今なお色褪せず、

適切なリフォームを重ねることで、現在も非常に良好なコンディションを保っています。
一体化された平屋棟は、
光と風を巧みに取り込む開放的な設計。

親世帯の居住空間としてはもちろん、
アトリエ、書斎、サロン、仕事場など、
用途を限定しない“余白のある一室”として、高い価値を持ちます。
まるで四季折々に表情を変える庭木のように、
住む方のライフステージに応じて柔軟に姿を変える住まいです。
■ 二世帯住宅として、あるいは「賃貸併用」という知的選択
本邸は、
一棟をご自宅として使用しながら、
もう一棟を月額8万円前後で賃貸運用することも想定可能。
・将来への備え
・住宅ローンの軽減
・安定した資産形成
「住まい」と「資産価値」を両立する、
極めて合理的で希少な選択肢です。

また、
**分割販売(例:2,200万円/2,300万円)**のご相談も可能で、
「一棟のみ」というご要望にも柔軟に対応いたします。
※一括購入をご希望の方を優先させていただきます。
■ 素地の良さが際立つ、白岩町の成熟した住環境
行政施設、金融機関、医療機関、日常の買い物施設が徒歩圏内。
生活利便性と静けさが高い次元で両立する、成熟した住宅地です。
小・中学校へも無理のない距離にあり、
家族構成の変化にも長く対応できる立地。
バス停まで徒歩6分、
JR西諫早駅へは徒歩18分と、交通利便性も良好。
日々の移動にストレスを感じさせません。
■ 物件概要
所在地:諫早市白岩町32-3・32-4
価格:3,980万円
間取り:8LDK
土地面積:445.19?(134.66坪)
建物面積:191.98?(58.07坪)
建物詳細
1992年1月:積水ハウス施工(受賞歴あり)
2015年4月:平屋棟 新築(59.62?)
構造:軽量鉄骨造+木造(二棟構成)
リフォーム:複数回実施
駐車場:4台(屋根付き)
法令等
市街化区域
第一種低層住居専用地域
南側6m道路/接面32m
現況:空家
引渡:即時
近隣では、
土地61坪・建物35坪の新築分譲住宅が税込5,836万円で販売されており、
本邸が持つ「広さ・質・資産性」を考えれば、
その価格優位性は際立っています。
■ ご案内
「この住まいの価値は、
写真や言葉では語り尽くせません。」
現地に立ち、空気を感じていただければ、
この家が“選ばれてきた理由”を、きっとご理解いただけます。
どうぞお気軽にご見学ください。
シモハマ不動産
諫早市宇都町19-63
TEL:0957-24-2885
E-mail:isahaya@shimohamafudosan.com
担当:下浜 誠一郎
携帯:090-9570-9735
長崎県知事(11)第1865号
(公社)長崎県宅地建物取引業協会会員
九州公正取引協議会会員
情報登録日:令和8年2月10日
更新予定日:令和8年3月6日



「スターライト☆パーティ」の最終実行委員会 by 匿名 (10/01)
Star Light Party 星空の下で【タイムスケジュール発表】 by 匿名 (09/25)
諫早でマラソン大会を立ち上げましょう(^.^) by 通りすがり (06/05)